Tal y como adelanté en un post anterior de nuestras obras de la temporada 2012, aquí están las oficinas centrales de AGIFES en Donostia. El encargo era muy interesante. Debíamos partir de un local "desnudo", de obra..... imaginarnos el funcionamiento de la oficina para generar el programa que ordenase los espacios. Todo ello junto con un grupo representativo de la propiedad. Fue un trabajo conjunto, ambos equipos fuimos descubriendo poco a poco los secretos del local y sus posibilidades, a la vez que las adaptabamos a la otra linea de trabajo que eran los usos a los que debía ser destinado.
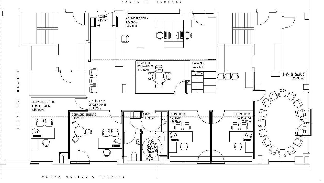
El espacio del local permitía su ocupación tanto en planta como en altura ya que al ser la unión de dos locales la superficie era importante (unos 180m2) y por otro lado al encontrarse al final de una calle en pendiente, permitía que el espacio alcanzase una altura próxima a los 5,50m. Las posibilidades prometían pero con pequeños condicionantes en todos los casos: un escalón de 35cm que dividía la planta en dos zonas (habría que decidir que hacer con él a la vez que se solucionaba el acceso y no se perdía demasiada altura), una altura suficiente para una entreplanta pero limitada por la normativa vigente ( y por la solución que diesemos al salto de forjado),...es decir posibilidades sí..... pero....
El espacio del local permitía su ocupación tanto en planta como en altura ya que al ser la unión de dos locales la superficie era importante (unos 180m2) y por otro lado al encontrarse al final de una calle en pendiente, permitía que el espacio alcanzase una altura próxima a los 5,50m. Las posibilidades prometían pero con pequeños condicionantes en todos los casos: un escalón de 35cm que dividía la planta en dos zonas (habría que decidir que hacer con él a la vez que se solucionaba el acceso y no se perdía demasiada altura), una altura suficiente para una entreplanta pero limitada por la normativa vigente ( y por la solución que diesemos al salto de forjado),...es decir posibilidades sí..... pero....
El programa combinada usos de diferente índole: uno totalmente público, gente que se acercaba a por información, personas ocasionales, cartero, visitas, etc...; otro semi privado, familiares de usuarios consolidados que harían uso de la sala de grupos (elemento importantísimo), familiares de futuros usuarios que se acercarían para iniciar su relación con la asociación...y por último los trabajadores de la empresa, usuarios de a diario de las futuras instalaciones..
Dadas las características de la asociación quisimos que como generador de proyecto, aparte del aprovechamiento del espacio y desarrollo del programa; estuviesen presentes conceptos que permitiesen a todos los usuarios tener la sensación de amplitud para ello nos lanzamos a por las transparencias, a que se entendiese el espacio con un golpe de vista, vistas veladas y semi transparentes, diagonales de luz y a alejarnos de lo que podía entender como una oficina común y compartimentada donde cada espacio se convirtiese en una caja estanca.
Esto se hace presente ya desde el exterior donde la superposición de capas de diferente opacidad se utiliza como reclamo al viandante (chpas perforas, vinilos, estores y vidrios). Se realiza una escala de transparencias mediante chapas perforadas, combinadas con motivos de vinilos y estores de distinta densidad que comienza desde el exterior y se va desarrollando en el interior aportando a cada sala el grado de privacidad necesaria permitiendo a sus usuarios en todo momento las visiones transversales, la entrada de luz y el poder situarse y localizarse dentro de las oficinas que a su vez proporciona una sensación de relajación, calma, seguridad y sobretodo confianza.
Esto se hace presente ya desde el exterior donde la superposición de capas de diferente opacidad se utiliza como reclamo al viandante (chpas perforas, vinilos, estores y vidrios). Se realiza una escala de transparencias mediante chapas perforadas, combinadas con motivos de vinilos y estores de distinta densidad que comienza desde el exterior y se va desarrollando en el interior aportando a cada sala el grado de privacidad necesaria permitiendo a sus usuarios en todo momento las visiones transversales, la entrada de luz y el poder situarse y localizarse dentro de las oficinas que a su vez proporciona una sensación de relajación, calma, seguridad y sobretodo confianza.
![]() |
| estado reformado - pb |
![]() |
| estado reformado - p1 |




